Expert Planning and Building Control Solutions
Throughout Sussex and Surrey
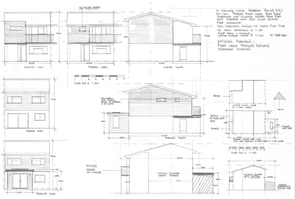
At Open Home Design, we provide detailed architectural plans, structural calculations, and project management to bring your property ideas to life with clarity and efficiency, through dedicated personal service.

Experience Expert Planning and Clear Guidance
From initial FREE consultation through the planning process and right up to completion and sign off by Building Control.
Discover how our architectural and development expertise delivers clarity, precision, and trusted advice for your property projects.
From one off builds to residential extensions or remodels.
Comprehensive Architectural Plans
Receive detailed, accurate drawings tailored to your property, ensuring smooth approvals and confident building progress.
Transparent Cost Estimates
Benefit from clear, upfront pricing information with free quotes and consultations to inform your project decisions.
Dedicated Project Management
Enjoy expert support throughout your build, coordinating all aspects to keep everything on track and within budget.



Clear and Accurate Quotes for Your Confidence
Explore our full range of architectural planning, engineering support, and project management services, all focused on delivering excellence and client satisfaction.
Architectural Planning
Comprehensive architectural plans tailored to reflect your vision and comply with regulations.
Structural Engineering
Precise engineering calculations ensuring the safety and integrity of your property.
Project Management
Dedicated Project Management oversight to keep your property development on schedule within budget and all good as written.


Comprehensive Guidance Throughout Your Project
Get transparent estimates and book your FREE initial consultation with ease. Expert Planning and guidance. Typical projects include House extensions, re-models and One off residential builds.
Expert Guidance for Every Aspect of Your Property Project
Discover our core services designed to streamline your building journey.


Architectural Planning
Providing detailed blueprints tailored to your property’s unique needs.
Transparent Cost Estimates
Clear pricing with no hidden fees, including FREE initial consultations.
Dedicated Project Management
Ensuring smooth progress from concept through to completion.
Structural Engineering
Accurate calculations to guarantee safety and compliance.
Comprehensive Development Appraisals to Guide You
A recently completed project for clients in Sussex, which transformed the dated, bungalow into a stunning home, making the most of its position and views.


